>门式起重机门式起重机
路桥门式起重机 中山起重机
路桥门式起重机也叫 MG型吊钩门式起重机(桁架式)
路桥门式起重机适用于公路、桥梁、电厂等建设工场进行一般的装卸及起重搬运作业。
订货须知:
本起重机由桥架、大车运行机构、小车、电气设备等组成。全部机构均在操纵室内操纵。起重机导电形式分电缆和滑触线两种,订货时任选一种。选用本起重机时需填写订单规范表,须注明使用时工作环境的*低温度和*高温度以及电源等。
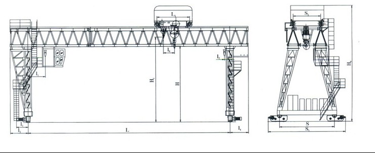
下面是 路桥门式起重机设计图:

上一产品:抓斗桥式起重机 QZ型 下一产品:大型提梁机
